Welcome to The Sister Cottages - two beautifully restored historic homes in St. Augustine's sought-after Abbott Tract. Sold together as a turnkey short-term rental portfolio with a transferable LLC, this rare offering provides both flexible living and exceptional income potential in one of Florida's most desirable destinations. Completely rebuilt from the ground up in 2019, these residences blend classic craftsmanship with modern comfort, creating a pair of timeless retreats that celebrate the city's heritage while embracing today's lifestyle. Big Sister Cottage, originally constructed in 1844, stands as a masterwork of preservation and design. Every detail reflects a deep respect for its storied past - from reclaimed wood beams and cypress accents to crystal chandeliers, as well as curated antiques and art. With three bedrooms and three full baths, the home offers high ceilings, sunlit living areas, and a gracious front porch that evokes the charm and soul of the Old City.
Listed by Noah Bailey of Keller Williams Realty Atlantic Partners St Augustine

Listing Tools

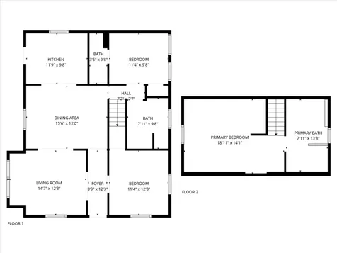
Property Details of 16 Locust Street

Property Details

Interior Features

Utilities and Appliances

Community

Map Location

Based on information submitted to St. Augustine & St. Johns County Board of Realtors as of November 13, 2025 7:16 AM EST. All data is deemed reliable but is not guaranteed accurate by the MLS. All information should be independently reviewed and verified for accuracy. IDX information is provided exclusively for consumers’ personal, noncommercial use and may not be used for any purpose other than to identify prospective properties consumers may be interested in purchasing.

Hi there! How can we help you?

Contact us using the form below or give us a call.

Send Us A Message:

I agree to receive marketing and customer service calls and text messages from Bosshardt Realty Services. To opt out, you can reply 'stop' at any time or click the unsubscribe link in the emails. Consent is not a condition of purchase. Msg/data rates may apply. Msg frequency varies. Privacy Policy.
Reply HELP for help at (352) 269-9582

Do not fill in this field:

This site is protected by reCAPTCHA and the Google Privacy Policy and Terms of Service apply.

Hi there! How can we help you?

Contact us using the form below or give us a call.

Send Us A Message:

Do not fill in this field:

This site is protected by reCAPTCHA and the Google Privacy Policy and Terms of Service apply.

Hi there! How can we help you?

Contact us using the form below or give us a call.

Send Us A Message:

Do not fill in this field:

This site is protected by reCAPTCHA and the Google Privacy Policy and Terms of Service apply.

Do not fill in this field:

This site is protected by reCAPTCHA and the Google Privacy Policy and Terms of Service apply.

Do not fill in this field:

This site is protected by reCAPTCHA and the Google Privacy Policy and Terms of Service apply.

Do not fill in this field:

This site is protected by reCAPTCHA and the Google Privacy Policy and Terms of Service apply.

$

Do not fill in this field:

This site is protected by reCAPTCHA and the Google Privacy Policy and Terms of Service apply.